深圳罗湖区2022年第一批次公租房认租指南
2022-02-09 17:56:10
fx358财富网
【导语】:深圳罗湖区2022年第一批公共租赁住房已经开放认租了,一共1011套,分布在罗湖区、龙岗区、龙华区和宝安区。感兴趣的小伙伴快点击正文查看详情,不要错过了最佳认租时间哦
【导语】:深圳罗湖区2022年第一批公共租赁住房已经开放认租了,一共1011套,分布在罗湖区、龙岗区、龙华区和宝安区。感兴趣的小伙伴快点击正文查看详情,不要错过了最佳认租时间哦!
房源详情

点击图片查看大图
提示:关于公共租赁住房是否能参与学区划分及落实学位,以房源所在地教育主管部门意见为准;关于公共租赁住房是否能落户及办理居住证,以房源所在地辖区派出所的意见为准。建议有学位、落户等需求的在册轮候人提前咨询相关部门后谨慎选择,本单位不作任何承诺;
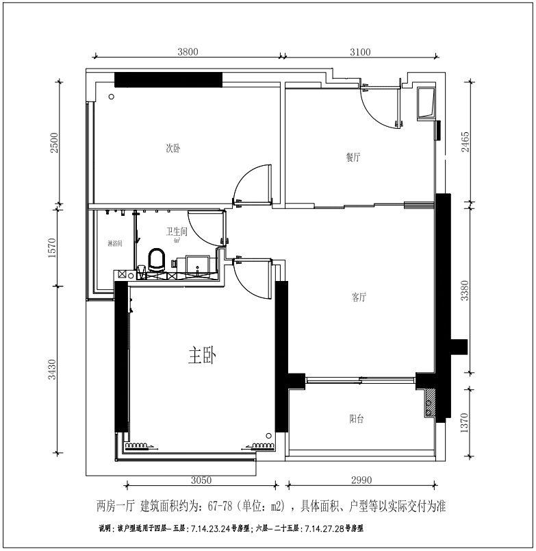
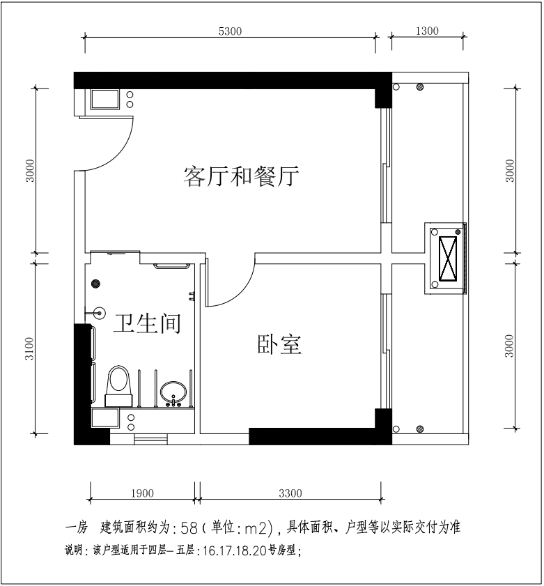
户型图
以下为兴亿时尚公寓的户型图



预约看房
看房时间:
2022年2月7日至2022年2月25日
看房预约咨询电话:

认租指引
认租时间
2022年1月30日9:00-2022年2月25日18:00
认租对象
在册轮候家庭中属罗湖区户籍的无房家庭
认租入口
关注【fx358】微信公众号,发送消息【公租房】获取认租入口。
咨询指引
地址:罗湖区东门中路2112号万达丰大厦7楼
电话:25666765、22185615
(工作日:9:00~12:00、14:00~18:00)
