深圳港嵘拔翠园安居房最新消息(持续更新)
【导语】:港嵘拔翠园安居型商品房是一个热门楼盘,将分两个批次进行配售。第一批次目前已经选房完毕,第二批次1172套房源将面向领军人才及深圳市安居型商品房在册轮候家庭配售,配售时间将根据项目建设进度另行通告。关于房源的最新消息将在本文更新,大家戳正文了解详情...
港嵘拔翠园安居型商品房分两个批次进行配售。第一批次目前已经选房完毕,第二批次配售时间将根据项目建设进度另行通告。因此本文主要介绍港嵘拔翠园第二批次房源详情和最新消息。
最新进展
第一批次房源已认购完毕,第二批次认购时间另行通告
房源详情
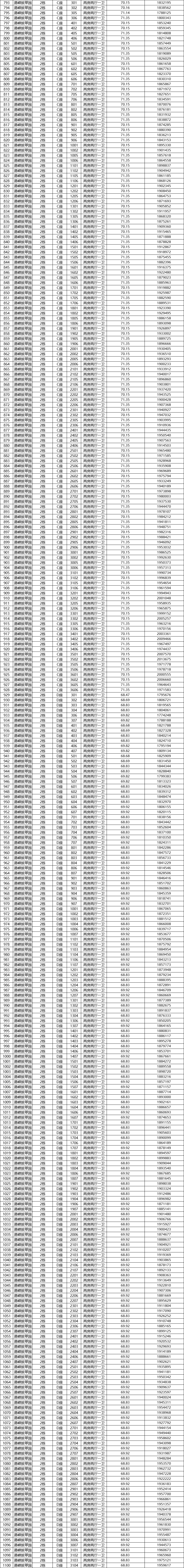
1、房源数量:
1172套安居房
2、房源户型(数量):
两房户型 1080套:位于1栋A、D、E座
三房户型 92套:2栋A座
3、项目地址
位于盐田区盐田街道永安路与明珠道交汇处,项目临近永安路、明珠大道、盐田南三街(规划)和明珠三街(规划)。

4、配套设施
1、包含10栋安居型商品房,建筑面积为184610m及2栋非安居型商品房,建筑面积38692㎡
2、配套商业3000㎡
3、12班幼儿园3900㎡
4、社区警务室50㎡
5、社区管理用房300㎡
6、社区服务中心600㎡
7、文化活动室1500㎡
8、社区健康服务中心1500㎡
9、社区老年人日间照料中心1000㎡
10、邮政所150㎡
11、小型垃圾转运站200㎡
12、再生资源回收站90㎡
13、环卫工人休息房20㎡
14、公共厕所90㎡
15、婴幼儿照护设施90O㎡
16、党群服务中心1580㎡
17、物业服务用房478㎡
18、地下停车位2270个

5、交付使用时间
预计2024年5月交付使用
配售价格认购通告还没出来,大家可以参考第一批次的价格!
均价:27352.07元/㎡(按建筑面积计算,含装修)
两房两厅:约70㎡,171万起




三房两厅:约89㎡,238万起

户型情况
两房户型:
数量:1080套
地址:位于1栋A、D、E座
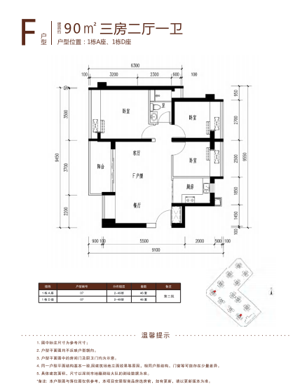
三房户型:
数量:92套
地址:位于2栋A座
户型主要为A、B、E、F四种



阅读推荐
》》深圳港嵘拔翠园房价
》》深圳公租房房源最新消息
》》深圳安居房房源最新消息
》》深圳人才房房源最新消息
温馨提示
关注【fx358】微信公众号,发送消息【保障房】获取深圳公租房/安居房/人才房房源最新消息、认租/认购最新通告、认租/认购指南、轮候申请入口等信息。

