深圳港嵘拔翠园怎么样
【导语】:深圳港嵘拔翠园是一个网红楼盘,该楼盘共有安居房2564套,其中第一批次的1千多套已经配售完毕,剩下的1172套还没确定配售时间,大家可以期待一下哦!
港嵘拔翠园安居型商品房分两个批次进行配售。第一批次目前已经选房完毕,第二批次1172套尚未启动配售。本位主要介绍第二批次房源的具体信息。
房源户型
两房户型:
数量:1080套
位置:位于1栋A、D、E座
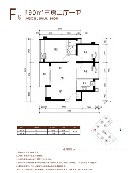
三房户型:
数量:92套
位置:位于2栋A座
户型主要为A、B、E、F四种



配售对象(满足其一)
1、领军人才
2、深圳市安居型商品房在册轮候家庭
配售价格
第二批次房源的价格尚未出炉,大家可以通过第一批次房源知道大概的价格。
均价:27352.07元/㎡(按建筑面积计算,含装修)
两房两厅:约70㎡,171万起




三房两厅:约89㎡,238万起

配套设施
1、包含10栋安居型商品房,建筑面积为184610m及2栋非安居型商品房,建筑面积38692㎡
2、配套商业3000㎡
3、12班幼儿园3900㎡
4、社区警务室50㎡
5、社区管理用房300㎡
6、社区服务中心600㎡
7、文化活动室1500㎡
8、社区健康服务中心1500㎡
9、社区老年人日间照料中心1000㎡
10、邮政所150㎡
11、小型垃圾转运站200㎡
12、再生资源回收站90㎡
13、环卫工人休息房20㎡
14、公共厕所90㎡
15、婴幼儿照护设施90O㎡
16、党群服务中心1580㎡
17、物业服务用房478㎡
18、地下停车位2270个

申购时间
将根据项目建设进度另行通告
大家可以关注【fx358】微信公众号,发送消息【安居房】实时了解深圳安居房配售信息,申购入口和指南。
阅读推荐
》》深圳港嵘拔翠园学位信息
》》深圳公租房房源最新消息
》》深圳安居房房源最新消息
》》深圳人才房房源最新消息
温馨提示
关注【fx358】微信公众号,发送消息【保障房】获取深圳公租房/安居房/人才房房源最新消息、认租/认购最新通告、认租/认购指南、轮候申请入口等信息。
港嵘拔翠园第二批次认购消息也可以在这里获取。

