深圳港嵘拔翠园安居型商品房户型图
2021-12-21 16:55:55
fx358财富网
【导语】:深圳盐田区港嵘拔翠园安居房项目是一个热门楼盘,户型以两房和三房为主。该项目分两批配售,目前第一批次的1392套已经认购完毕,第二批次的1172套配售时间未定,大家可以期
【导语】:深圳盐田区港嵘拔翠园安居房项目是一个热门楼盘,户型以两房和三房为主。该项目分两批配售,目前第一批次的1392套已经认购完毕,第二批次的1172套配售时间未定,大家可以期待一下哦!
港嵘拔翠园安居型商品房分两个批次进行配售。第一批次目前已经选房完毕,第二批次1172套配售时间另行通告。
第二批次房源户型
两房户型:
数量:1080套
地址:位于1栋A、D、E座
三房户型:
数量:92套
地址:位于2栋A座
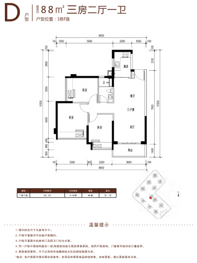
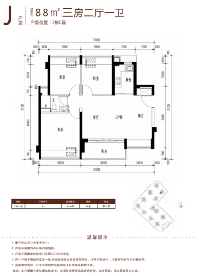
具体的户型图是怎么样,大家可以参考第一批次房源的户型图
第一批次房源位于1栋F、G、H座和2栋B、C、D座。




阅读推荐
》》深圳港嵘拔翠园房价
》》深圳公租房房源最新消息
》》深圳安居房房源最新消息
》》深圳人才房房源最新消息
温馨提示
关注【fx358】微信公众号,发送消息【保障房】获取深圳公租房/安居房/人才房房源最新消息、认租/认购最新通告、认租/认购指南、轮候申请入口等信息。

